EPS Builders can assist you in custom designing your dream home with our ultra-efficient building system. You can have a custom floor plan, elevation drawings and 3D Rendering of your new home! This allows you to make adjustments, change room sizes and see the new home before committing to the final design. Drawings available for new homes, commercial and ag buildings. Also available are site plans and virtual tours. Please talk to your builder as some fees may apply.
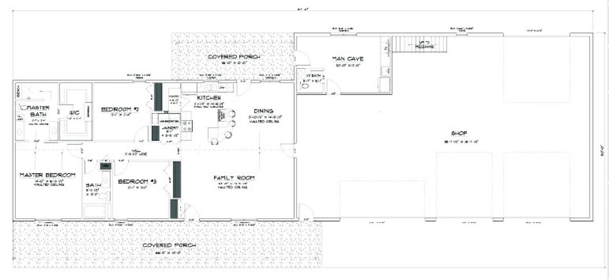
When it comes to shop vs. living space – there is no compromise needed with the Rose Mount shouse plan! This plan incorporates an 1800 square foot contemporary 3-bedroom 2-bath home with a large 48’x76’ Solid Core shop. The home features an open concept kitchen/living/dining room area. The master bedroom has its own bathroom suite that includes a large walk in shower. Attached laundry and mud rooms are adjacent to the shop area with a shop bath just outside the doors.
The shop is 48’x76’ and features two large overhead doors. It has plenty of to work on projects and store those already completed ones.
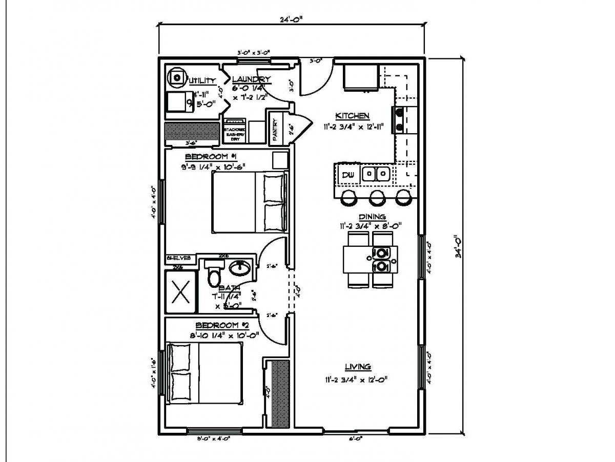
This floor plan maximizes square footage! It features three bedrooms and two bathrooms in just over 1300 sq. feet, plus an open great room/kitchen area. Special Features: Main floor laundry room.
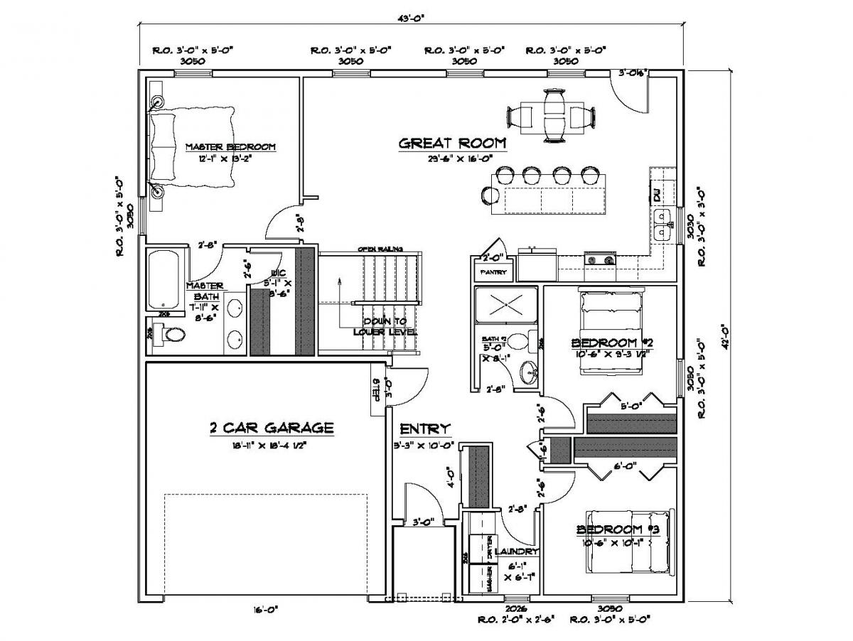
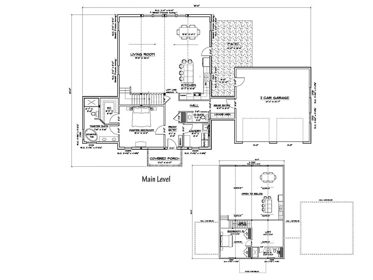
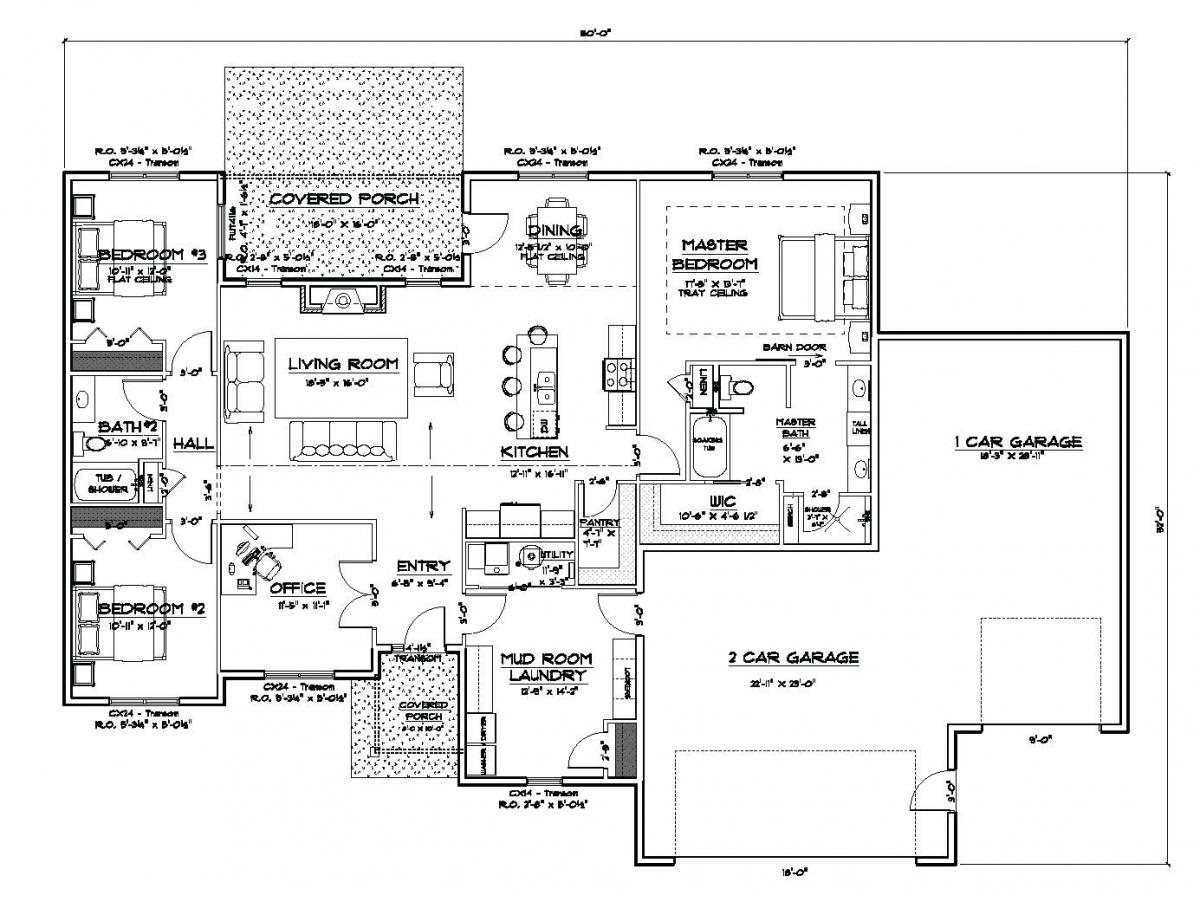
An executive style home with plenty of livable square footage. Entertain large groups or just enjoy the space in the combined living/dining/kitchen/great room. Separate bedroom wings allow flexible living and work well to accommodate guests or family members. Other convenience features include a large walk-in pantry for storage and large utility room/mud room located directly off the garage.
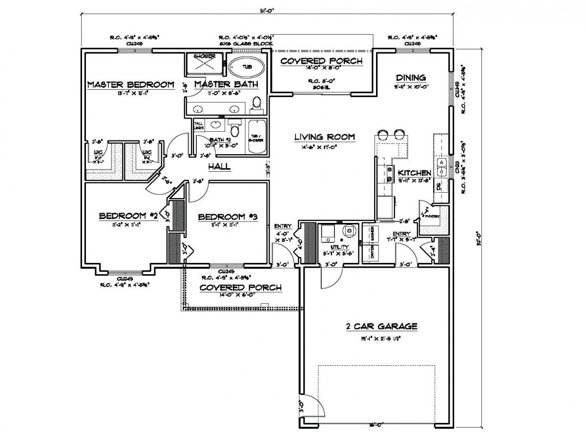
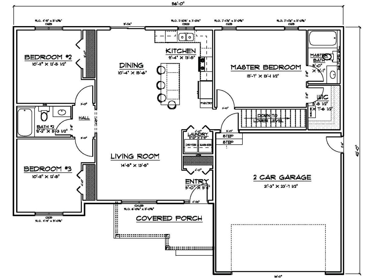
This classic ranch fits wants, needs and budgets for many families! Escape day-to-day life in the large master suite featuring a walk-in shower and large walk-in closet. The main floor utility room is conveniently located right off the kitchen/garage and has a half bath.
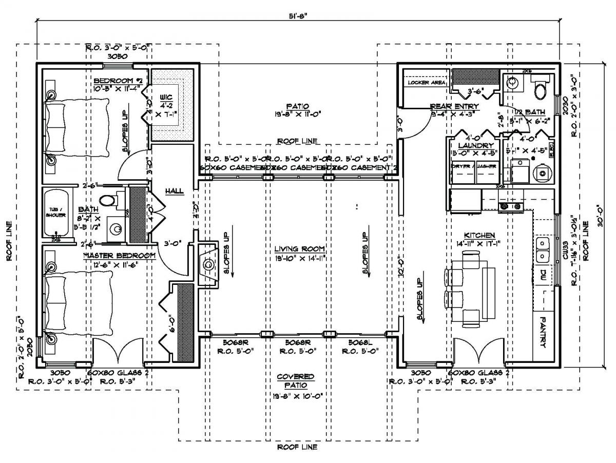
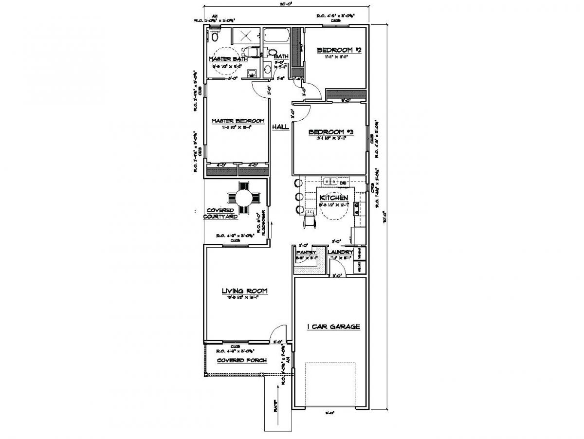
An excellent floor plan for a narrow lot. The Green Ranch features a covered front porch located right off the living room. A private courtyard located off the back living area creates the perfect outdoor escape. Special Features: 1 ADA bathroom.
This floor plan will fit well on many lots and at just over 1400 square feet has all the features you want! From a formal foyer area to a spacious Kitchen/Great Room, this design has everything you need in an affordable square footage range.
Need a small house or added space on your property? Whether you use it as a stand-alone small house, retreat or simply as an overflow or guest house on your property, this plan provides flexibility. Designed by Domain Architects.
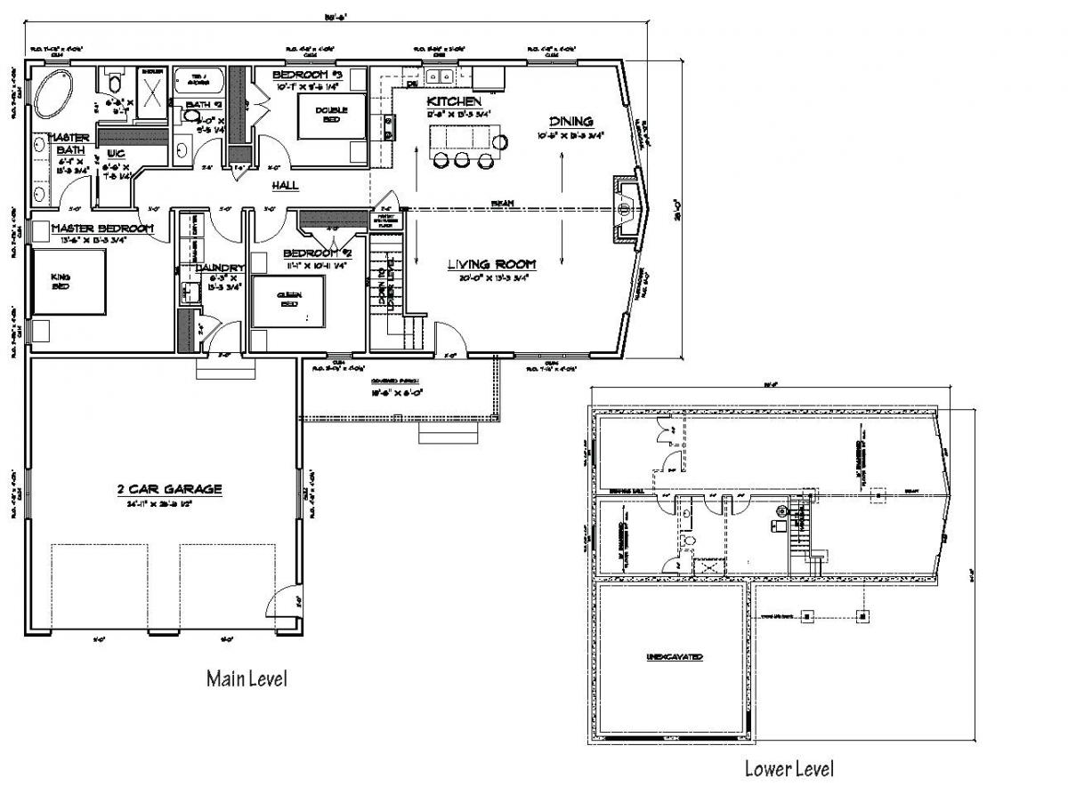
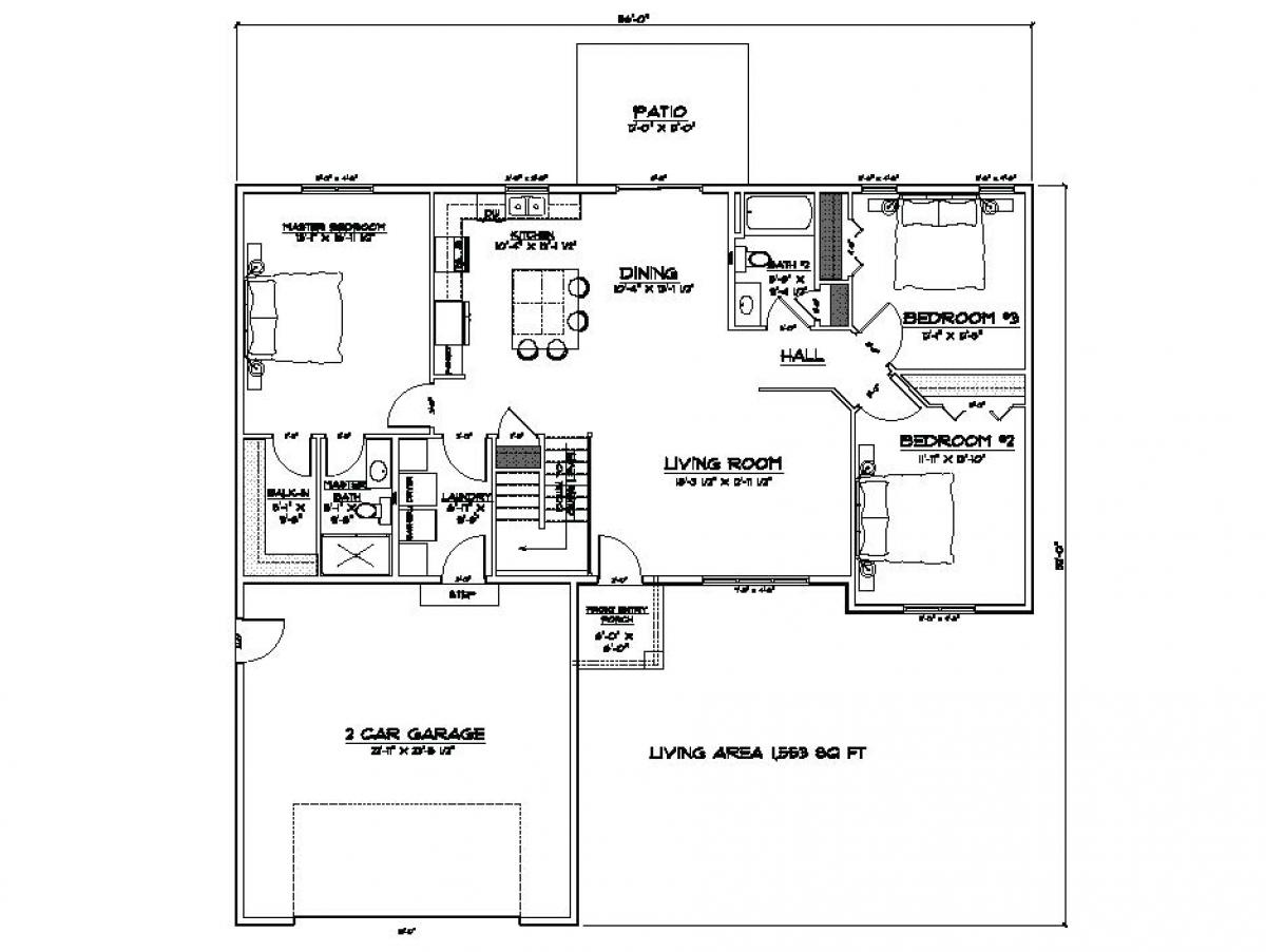
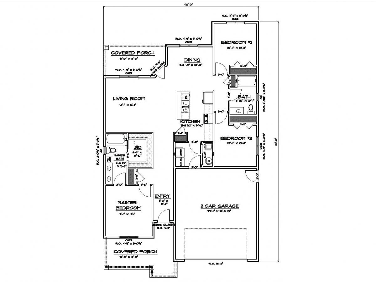
An ideal square footage for many family lifestyles and budgets. This floor plan features a separate master bedroom and bath suite. The open kitchen and dining room create plenty of space for active lifestyles.
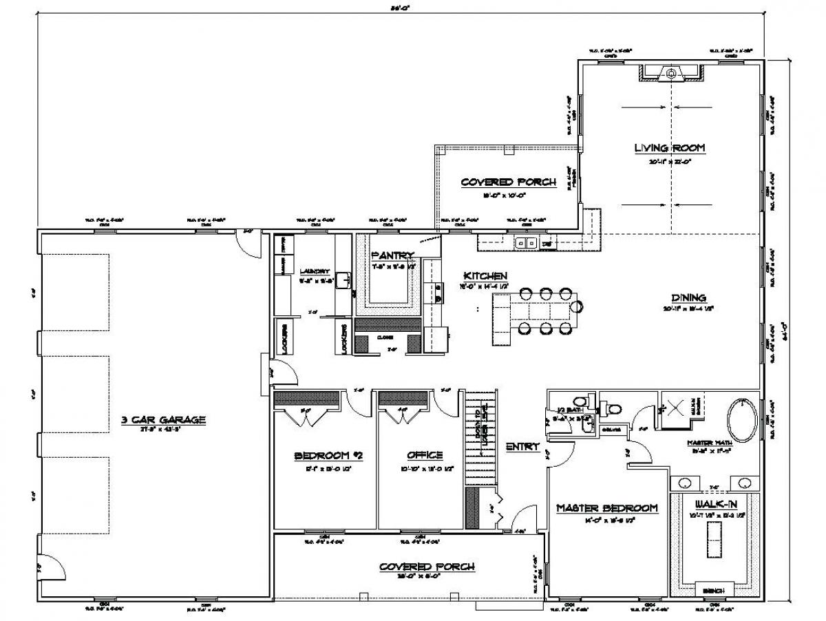
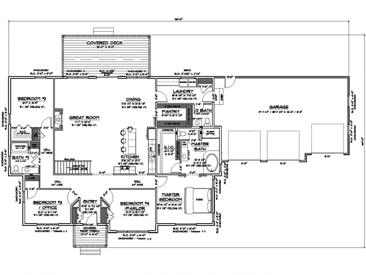
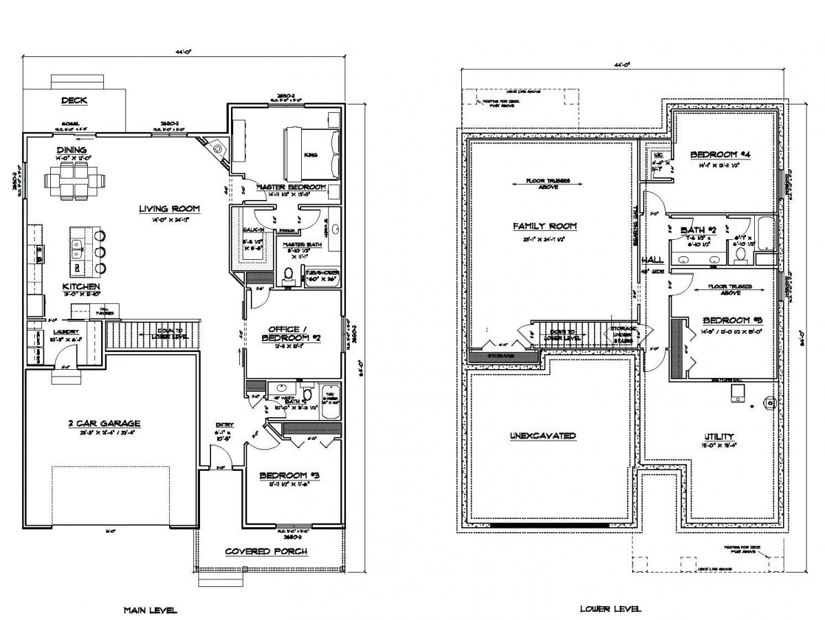
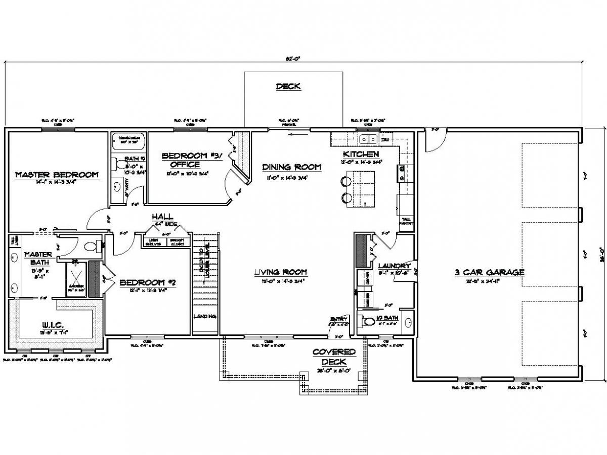
A true executive-style home that features plenty of living space. Features a separate master suite wing. Overflow space abounds onto a covered deck area off the dining room. Other convenience features are a large walk-in pantry for storage and food prep plus a large main floor utility/mud room.
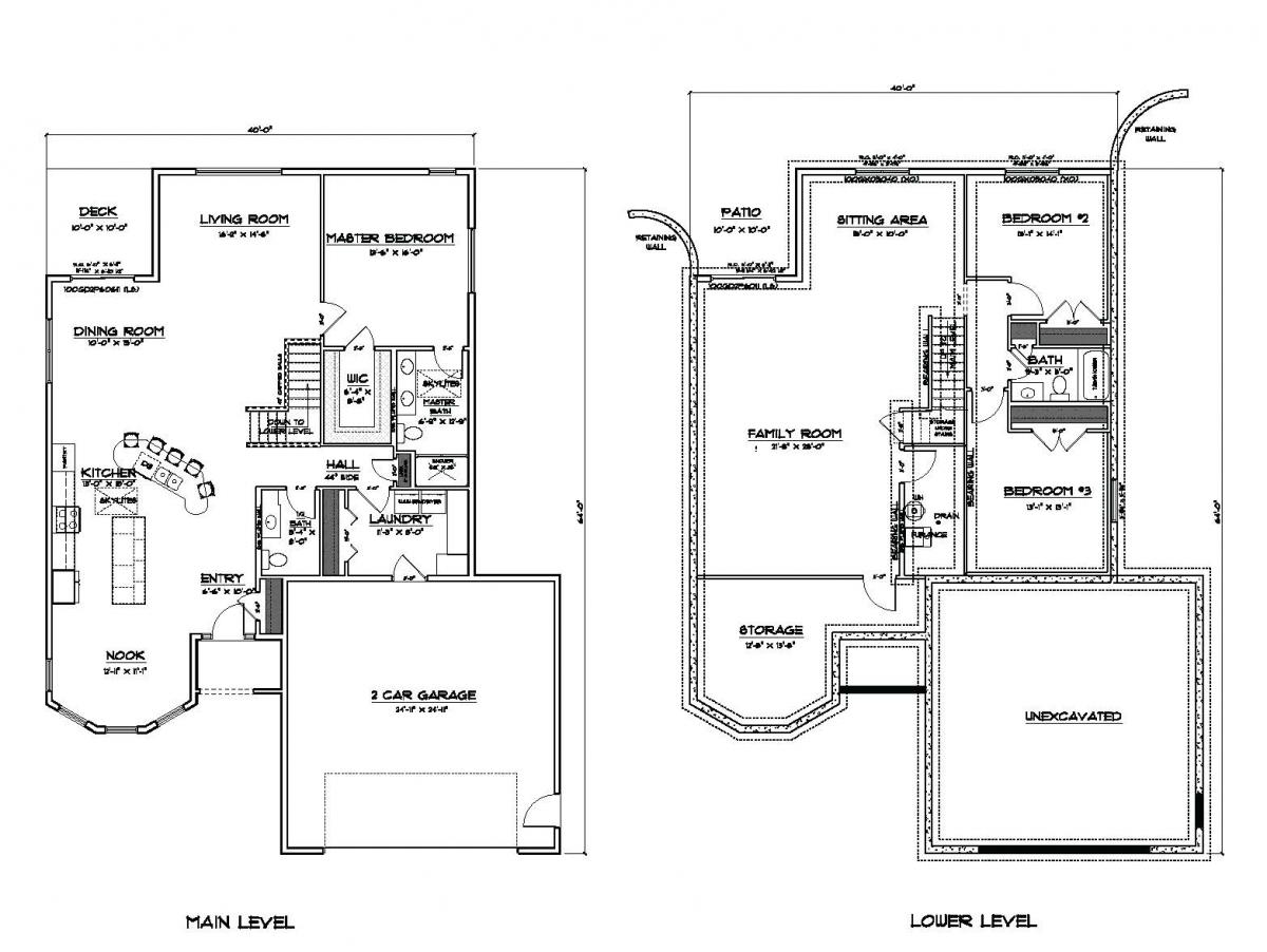
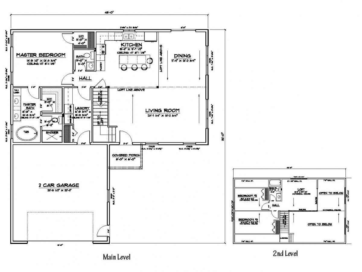
This plan has a combined kitchen, dining and living room area for open flow. Included on the main floor is a utility room. Need more space? This plan has a great expandable basement plan for more bedrooms and living space.
This floor plan makes the most of its square footage. It features an open concept between kitchen/dining room and living room that creates an open, airy effect. Includes large walk-in closet and a front-loaded garage.
Calling all empty nesters! This narrow lot floor plan gives you all the easy living features including a large master bedroom with walk-in closet, an open kitchen/living area and an eat-in breakfast nook. If needed, a flexible basement design allows for additional bedrooms and living space.
This sprawling country home is a showcase for comfortable family life! From its large, open living area featuring high cathedral ceilings and gourmet kitchen/bar area to a spacious dining room area, this plan checks all the boxes.
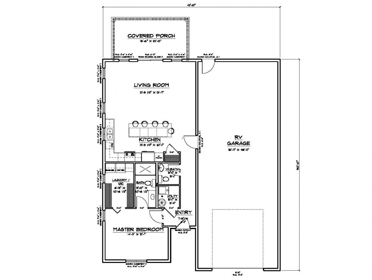
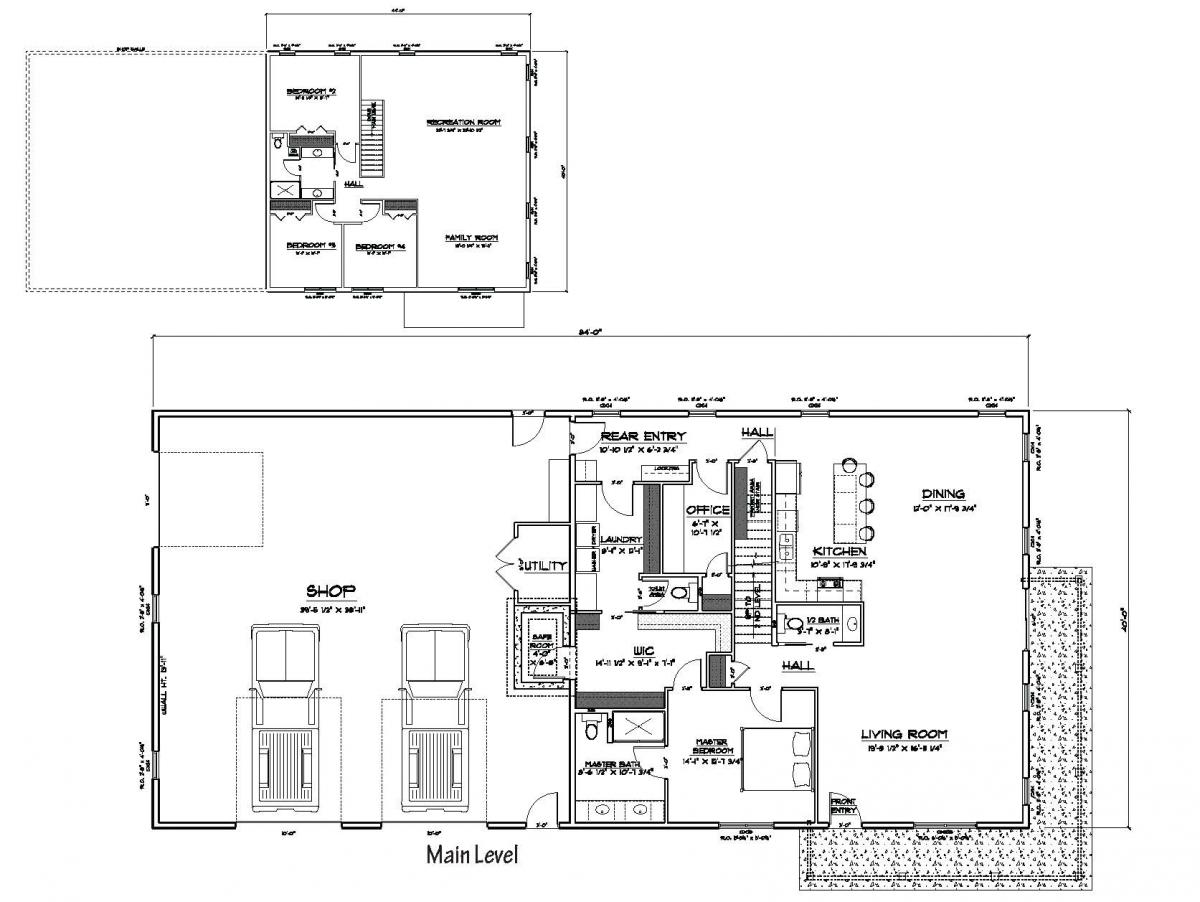
Perfect for today’s modern rural families. It features a utility room right off the shop with access to the master bath and bedroom. An office right off the shop allows for easy access during those busy multi-tasking days. The main floor also features an open end concept with kitchen/living area that have tall view windows to maximize a view. Level two has 3 bedrooms, a bath and a large rec area. Shop: 40’ x 40 with 3 overhead doors and man cave.
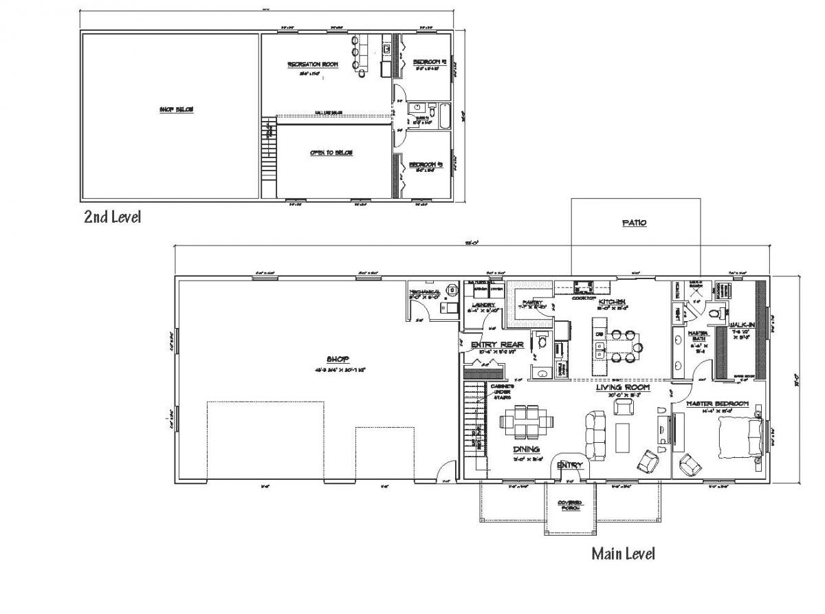
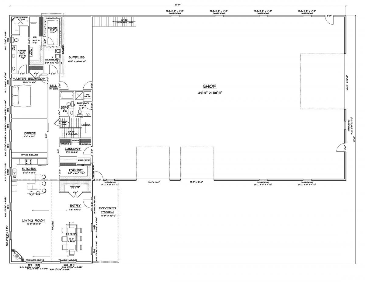
This Shouse has it all! Main floor has a large master suite, office with direct access to the shop, a large supply room, and built in shelter room; an open concept complete with trapezoid windows to maximize the view. The second floor features 3 more bedrooms, a large storage room and a huge family room capable of entertaining large groups. Shop: 90’ x 60’ with 20’ x 16’ end-wall overhead door openings and 12’x12’ overhead door openings.
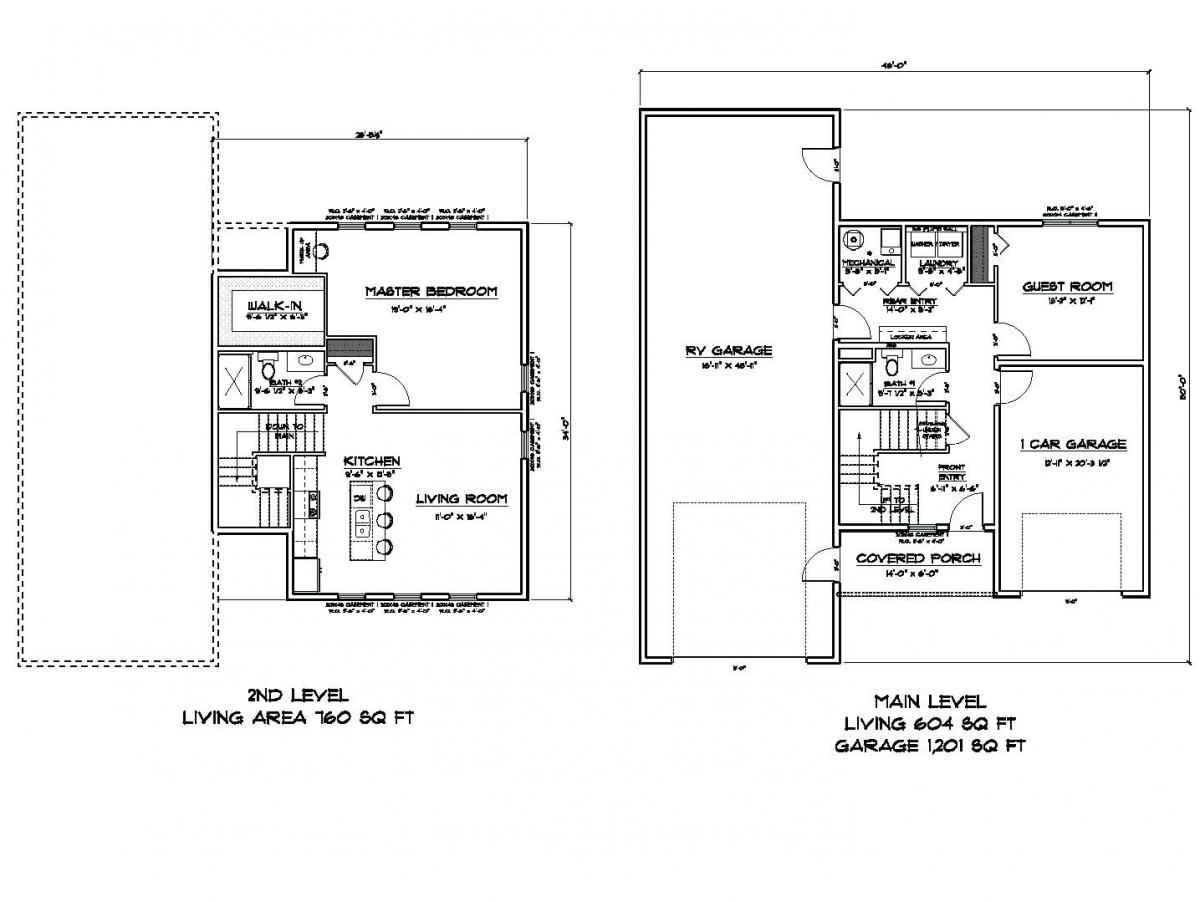
This shop/home features a large main level living area with master bedroom and bath along with an open kitchen living area and covered porch. The second level features two more bedrooms and a spacious rec room. Shop: 44’ x 32’.
This shouse features an open kitchen and family room. The master bedroom has a large walk-in closet. Enjoy a full-length, Ponderosa-style porch. Shop: 40’x 60’ with 4 overhead doors, plus man cave.
A little larger plan with 1 bedroom and a spacious kitchen/dining/great room. Bedroom has a walk-in closet and a roomy bath. The plan also incorporates a main floor laundry and furnace room.
A new twist to the RV Lifestyle design with plenty of room to accommodate guests! A guest quarters located on the main floor and a complete living area and master suite on the second floor. The main level features a guest room, laundry area along with a bath and furnace room. Upstairs you will find the master bedroom and bath along with a living area and kitchen.
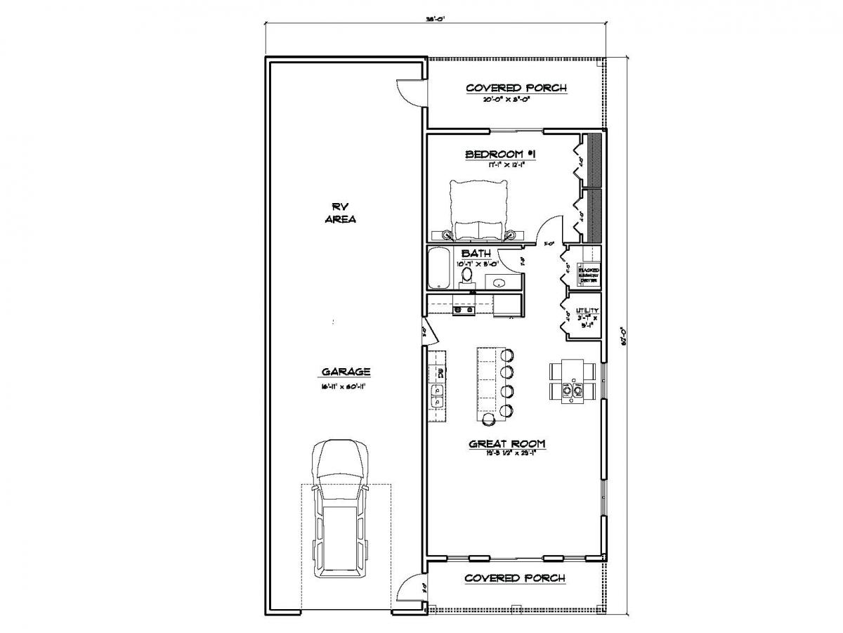
RVer’s desiring a simple, practical floor plan will appreciate the Sequoia. It features 1 bedroom and 1 bath along with a great room/kitchen combo that will fit all your needs. The garage is big enough to comfortably store up to a 32’ long RV while still having space for your car or SUV.
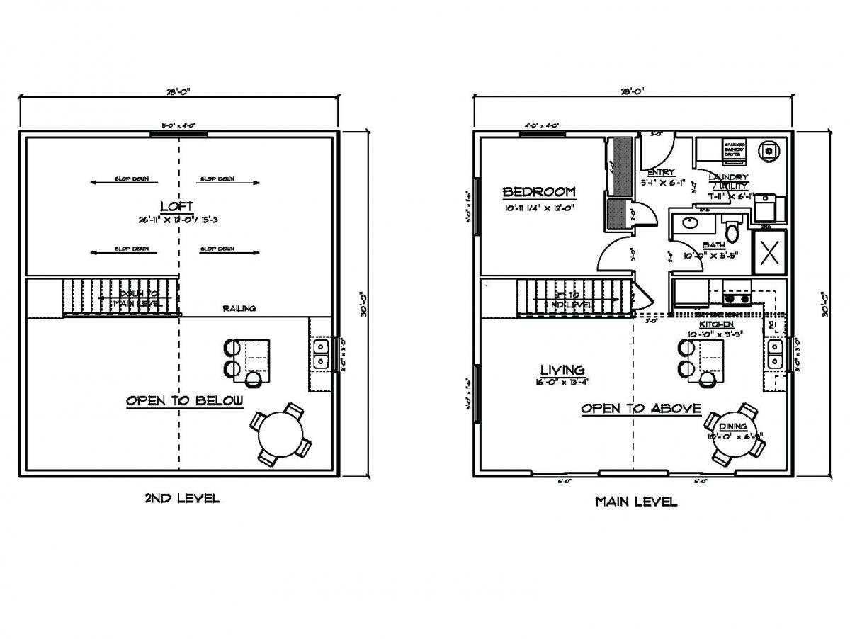
This entry level, lofted cabin offers amazing flexibility. The second level loft area offers great flexibility, perfect for partitioned bedrooms, bunks or just open storage.
This loft-style home is designed to maximize a view! The floor plan features an open, airy design with a second story loft to be a window on the world. Whether you choose a lakeshore, a mountain or your own acreage, the Aspen fits a variety of lifestyles.
A great single-story view maximizer featuring a large open great room with open kitchen dining room. Relax and enjoy all the views outside of the large trapezoid windows. Whether a full-time residence or a weekend getaway, the Boulder plan is extremely flexible.
This design features a mono-slope roof and covered porch for the perfect getaway.
An amazing entry level cottage design with all the features you desire! The floor plan packs two bedrooms, a bath and a main floor utility area in under 600 square feet of living space.
Open spaces and minimization of hallways. Can accommodate a full basement, crawl-space or slab foundation. Design features full-length windows, large overhangs and exposed wood beams. Designed by Robinson Residential Design.
Check out this plan guide to get your design process started!
Download File